Nasza oferta obejmuje projekty mebli indywidualnych, niestandardowych, nietypowych i oryginalnych
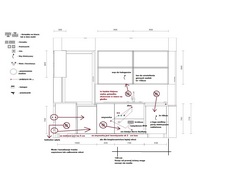
Techniczna adaptacja projektów od Architektów i projektantów, opracowanie technologi produkcji
Jako projektant mebli z dużą wiedza techniczną i praktyczną na temat produkcji mebli, zapewniam dobrą obsługę projektową oraz pełne zadowolenie z ostatecznego produktu
Projektuje: całość umeblowania w tym kuchnie, szafy, zabudowy wnęk, okładziny ścienne, stoły, pawlacze, siedziska, meble łazienkowe, sypialnie, tv, biurowych, firmowych, recepcji, sklepowych itd
Projektowanie całości umeblowania Apartamentów, domów, mieszkań i lokali od podstawowych po bardzo skomplikowane meble, okładziny i inne elementy wyposażenia wnętrz
Znajomość technologi produkcji mebli na wymiar oraz wiedza ogólnobudowlana skutkuje wyeliminowaniem błędów podczas uzgodnień i wykonania zlecenia
Dodatkowe atuty to zmysł plastyczny i wyobraźnia przestrzenna
Oprogramowanie wspomagające projektowanie 3D i wykonywanie widoków, opisów oraz wizualizacji
Ceny projektów wyliczane indywidualnie, jeśli wykonujemy kuchnie na wymiar to projekt jest w jej cenie ( projekty cennik )



